卫浴空间虽然不大,但所涉及的知识可不少,卫浴如何规划更合理?怎样选材更实用?每一项都是在家装中不容忽视的,面对一个卫浴空间,我们应该如何完美解决装修过程中遇到的各种难题呢?下面一起看看吧。
卫浴规划问题
Q:为什么要做干湿分离?

卫浴空间因为经常用水而造成地面潮湿,对生活造成极大的不便。针对这种情况,使用不同的间隔方式来解决干湿分离的问题,需要特别注意的是卫浴间的排水系统设计。
Q:如何打造出spa?

除了传统的座便器、浴缸以外,有条件的卫浴空间还可以增设蒸汽、按摩水柱、干湿分离等相关设备,让卫浴间成为享受生活的地方。
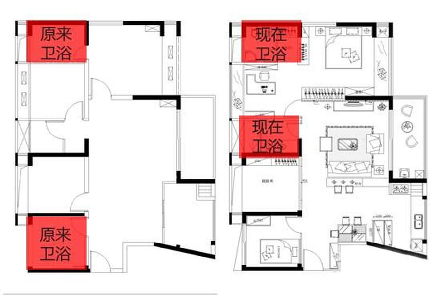
Q:卫浴更改位置好吗?

因为空间规划的问题,不少人喜欢在装修规划时更改卫浴位置,增加可用空间。如果要更改卫浴位置,要优先考虑管道和排水系统,特别是座便器的排污管道迁移,涉及到地面垫高产生载重和防水问题。所以一般不建议随意更改卫浴间的位置。
卫浴选材问题
Q:节水座便器真的节水吗?

座便器的节水效果是见仁见智的,挑选的时候更需要根据卫浴间的排水系统而定,如果卫浴的管道长,可以考虑排水量较大的座便器,相反的可选择排水量小的座便器。
座便器挑选的时候应该注意排水中心孔径与墙壁的距离是否足够,一般常见的是30、40cm,购买时候需要测量清楚。
Q:淋浴拉门使用哪一种好?

通常淋浴拉门分为铰链式和横拉式两种,消费者可以根据空间和预算来做选择,但是如果玻璃门选用强化玻璃的,需要考虑载重问题。
Q:如何选择浴缸?

挑选浴缸需要注意材质,现在浴缸总类分为:铸铁搪瓷浴缸、钢板搪瓷浴缸、玻璃钢浴缸、人造玛瑙以及人造大理石浴缸、水磨石浴缸、木质浴缸、陶瓷浴缸等。挑选时通过看表面光泽了解材质的优劣,手按、脚踩试坚固度,钢板和铸铁浴缸需摸表面平滑度,镀的工艺不好会出现细微的波纹。
卫浴装修问题
Q:安装智能座便器需要注意什么?

智能座便器越来越多人选用,在考虑安装智能座便器时,卫浴装修需要注意哪些要点?因为智能座便器涉及到用电和用水,因此在装修时候需要预留插座位置和多加一个进水口。
Q:按摩浴缸安装注意什么?

部分家居考虑安装按摩浴缸,装修时首先要注意排水系统,管道要做好适当的配置,不能与马达靠得太近,避免出现结构性的低频共振,发出噪音。
Q:蒸汽系统安装注意什么问题?

蒸汽系统适合用于较大的卫浴空间,安装时首先要有过滤水的系统,避免杂质进入造成设备空烧与爆炸的危险,其次是注意机器的安装方式、步骤,避免因为安装不当造成危险。
卫浴使用问题
Q:浴缸安装后常见什么问题?

浴缸会在底座和侧面加上支撑,如果没有做好加强支撑,浴缸在进排水时容易对浴缸造成伸缩性的裂缝;如果防水没有做好,会使浴缸旁边的空间墙面漆发霉甚至松脱;如果排水管没有固定好,会造成地下楼板渗水。
Q:脸盆浴缸为什么容易爆裂?

爆裂的原因可能是安装不当、运输过程碰伤或者产品质量问题。如果是涉及到产品质量问题,在挑选时就要注意了。脸盆注意挑选具有支撑性的,并且检查安装配件是否齐全;浴缸要看是否有多一层亚克力保护层,安装浴缸需要在下座增加有一层加强支撑。
累计已有 126453 人预约
400-600-5508
—— 装修分期付 快速装新家 ——
—— 合理规划空间 ——
—— 直到您满意为止 ——
请选择您喜爱的风格
轻奢
现代
新中式
北欧
没想好
—— 精准报价 避免入坑 ——
1.请选择您喜爱的风格
轻奢
现代
新中式
北欧
欧式
其他
—— 精准报价 避免入坑 ——
2.请选择房屋面积区间
80㎡以下
80-100㎡
100-140㎡
140-200㎡
200-300㎡
300㎡以上
3.请选择您的户型
两居室
三居室
四居室
五居室
六居室
大平层

—— 精准报价 避免入坑 ——
—— 精准报价 避免入坑 ——